Espace propriétaire
fr

Votre recherche

Accord
Nouveauté
Chaponost (69630)

9 pièces - 335 m²

Chaponost – Propriété avec deux habitations sur 5 000 m² de terrain

1 150 000 €
Ref : 1994
Découvrir le bien

L’agence 6ème Sens Immobilier – Francheville, vous propose en co-exclusivité un bien rare par sa configuration et son potentiel.

Située dans un environnement calme et verdoyant, tout en restant à proximité immédiate du centre-bourg de Chaponost, cette propriété s’étend sur un magnifique terrain (zonage agricole) d’environ 5 000 m², agrémenté d’une piscine, de nombreux abris et d’annexes.

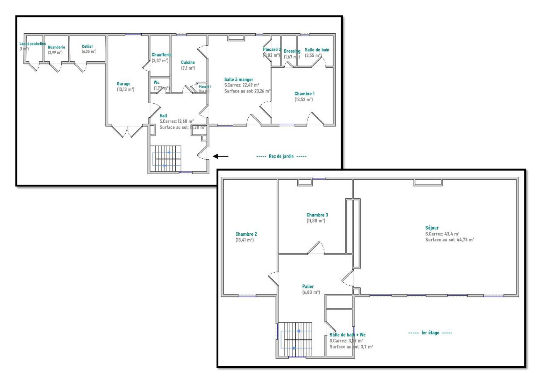
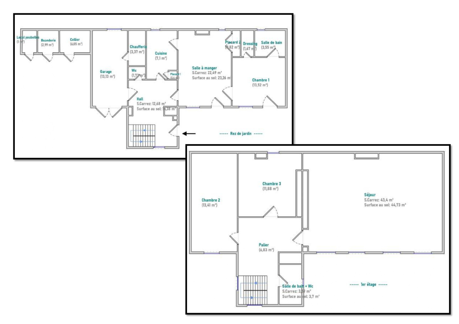
Le bien se compose de deux habitations distinctes :

-La maison principale développe 180 m2 sur 3 niveaux.

*Au RDC, hall d'entrée, double séjour, cuisine indépendante et WC.

*Au 1er, 3 chambres 2 salle d'eau, un WC.

*Au 2d, une chambre, une salle d'eau et un grenier.

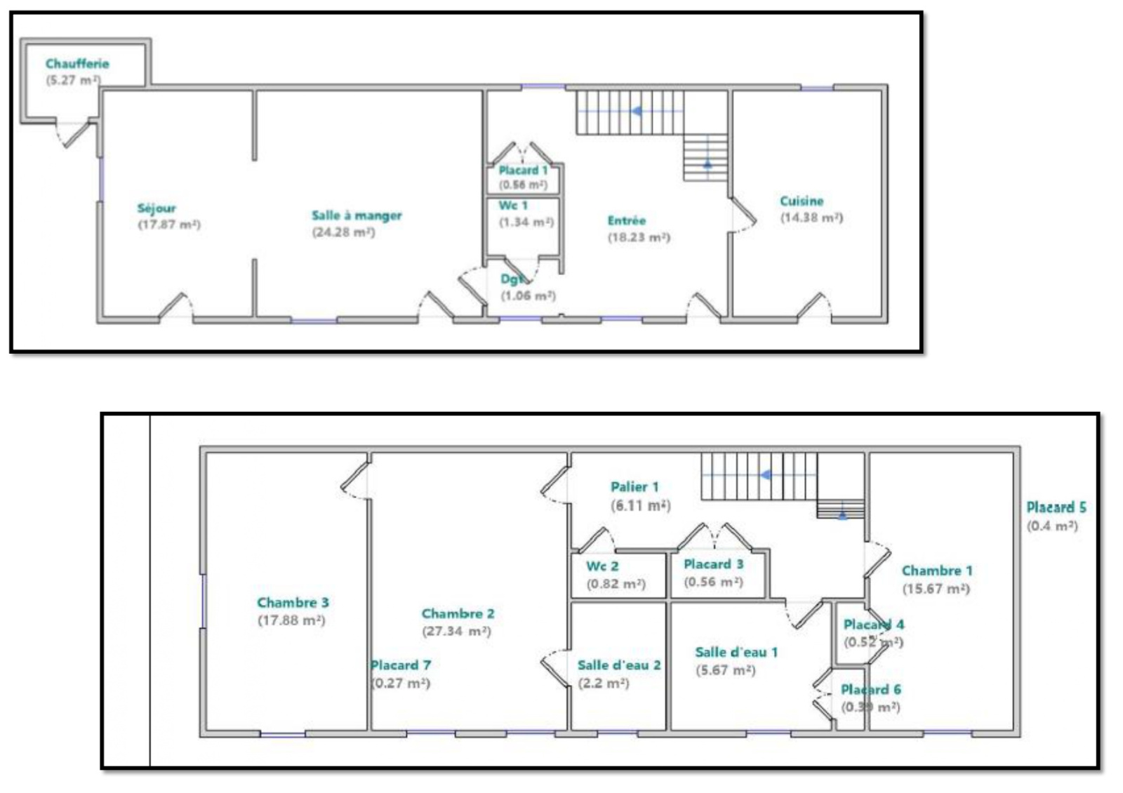
-L’ancienne grange, réhabilitée en 1980, développe quant à elle 147 m2 sur 2 niveaux.

*Au RDC, un hall, une cuisine, une salle à manger, une suite avec salle de bains.

*au 1er un grand séjour avec cheminée, 2 chambres, une salle de bains avec WC

La toiture a été entièrement refaite en 2002 sur cette partie.

Le chauffage est assuré par une chaudière gaz indépendante dans chacun des 2 logements.


Diagnostics de performance énergétique :

*DPE D pour la maison principale

*DPE E pour la seconde maison

Des travaux de rénovation et de mise au goût du jour sont à prévoir, laissant place à de nombreuses possibilités : projet familial, habitation intergénérationnelle, ou investissement locatif.

Un bien aux volumes généreux, au fort potentiel, dans un cadre recherché.

Prix de vente 1.150.000€ HCV FAI

Pour plus d’informations ou organiser une visite, contactez
Nathalie Chesnel – 6ème Sens Immobilier Francheville - 06.10.27.32.90.

TRAD_ZEPHYR_Caracteristique TRAD_ZEPHYR_Valeurs
Code postal 69630
surface terrain 5 000 m²
Nombre de chambre(s) 7
Nombre de pièces 9
Nombre de niveaux 3
TRAD_ZEPHYR_Caracteristique TRAD_ZEPHYR_Valeurs
Nb de salle d'eau 5
Mode de chauffage Gaz de ville
Type de chauffage Radiateur
Format de chauffage Individuel
Terrasse OUI
Nombre de garage 1
Année de construction 1850
TRAD_ZEPHYR_Caracteristique TRAD_ZEPHYR_Valeurs
Copropriété NON
TRAD_ZEPHYR_Caracteristique TRAD_ZEPHYR_Valeurs
Prix de vente honoraires TTC inclus 1 150 000 €
Taxe foncière annuelle 2 176 €
DPE GES
  • Commerces et santé
  • Loisirs
  • Ecoles
  • Transports
  • Pratique
Contacter pour ce bien
L'agence
Téléphone 04 37 230 458
Adresse
2 route du Bruissin 69340 Francheville

* Champ obligatoire

Les informations recueillies sur ce formulaire sont enregistrées dans un fichier informatisé par La Boite Immo agissant comme Sous-traitant du traitement pour la gestion de la clientèle/prospects de l'Agence / du Réseau qui reste Responsable du Traitement de vos Données personnelles. La base légale du traitement repose sur l'intérêt légitime de l'Agence / du Réseau. Elles sont conservées jusqu'à demande de suppression et sont destinées à l'Agence / au Réseau. Conformément à la loi « informatique et libertés », vous disposez des droits d’accès, de rectification, d’effacement, d’opposition, de limitation et de portabilité de vos données. Vous pouvez retirer votre consentement à tout moment en contactant directement l’Agence / Le Réseau. Consultez le site https://cnil.fr/fr pour plus d’informations sur vos droits. Si vous estimez, après avoir contacté l'Agence / le Réseau, que vos droits « Informatique et Libertés » ne sont pas respectés, vous pouvez adresser une réclamation à la CNIL. Nous vous informons de l’existence de la liste d'opposition au démarchage téléphonique « Bloctel », sur laquelle vous pouvez vous inscrire ici : https://www.bloctel.gouv.fr Dans le cadre de la protection des Données personnelles, nous vous invitons à ne pas inscrire de Données sensibles dans le champ de saisie libre.
Ce site est protégé par reCAPTCHA, les Politiques de Confidentialité et les Conditions d'Utilisation de Google s'appliquent.

Découvrir nos outils